KBKC柔性輕型組合系統起重機包括KBKC-LS雙梁等各種型式的起重設備,起重量0.125t~2t適應范圍極廣,尤其適用于現代化生產輸送線,其特點概述如下:

1、可靠性好、穩定性高
KBKC輕型起重機系統的組成部件全部是標準模塊,可以保證大批量、高質量生產,因而系統十分可靠;系統模塊的主體是三種規格的冷軋型材,強度大,剛度好,自重輕,保證了系統的穩定性。

2、適應能力強
KBKC系統可根據工廠各工位的需要,靈活地設計安裝起重機系統,從定點運送到高準確度地多點、多節拍的自動化輸送線,都能隨意組合而成。可用于新設計的廠房,也可用于舊系統的改造或延伸。

3、安裝方便,經濟效率高
KBKC系統的安裝調試很方便,型材及各標準模塊之間只須用螺栓連接即可使用,可節省工廠的空間和面積,大大減少了人力資源,提高生產效率,從而降低能耗,提高企業效益。系統可以手動操作,也可以實現自動、半自動操作,運行效率高。


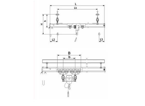
|
尺寸(mm)/起重量(kg) |
LK |
L |
L2 |
L3 |
H |
h |
b |
B |
|
500 |
7500 |
8544 |
1177 |
507 |
847 |
733 |
550 |
740 |
|
1000 |
6000 |
7044 |
937 |
507 |
942 |
828 |
550 |
740 |
|
2000 |
3500 |
4044 |
717 |
467 |
1071 |
957 |
650 |
1110 |
掃一掃,微信聯系咨詢 工作時間:周一至周五 9:00-18:00
聯系人:劉經理
手機:18921739103
郵件:canbo.liu@lmcranes.com
地址:江蘇省靖江市城南工業園區
